top of page
WETTBEWERB NEUBAU BURGFELDERSTRASSE
---
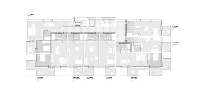
Die Eigentümerschaft möchte auf dem Grundstück der ehemaligen Tram-Endhaltestelle Burgfeldergrenze ein Wohnhaus mit Büros und einen Doppelkindergarten mit Tagesstruktur errichten. Der Neubau soll als Ergänzung der bestehenden Siedlung erscheinen. Das Programm sieht vor, die bestehende Tramwartehalle aus dem Jahr 1960 zu erhalten.
Veranstalter Kanton Basel-Stadt
Verfahren Offener Projektwettbewerb
Zusammenarbeit Atelier Romi
Fachplaner Statik Jauslin Stebler AG
Ort Basel, 2021
Bilder © Mück Petrovic
bottom of page






